Nörvenich Eschweiler über Feld | An den Feldgärten
Bebauungsplan
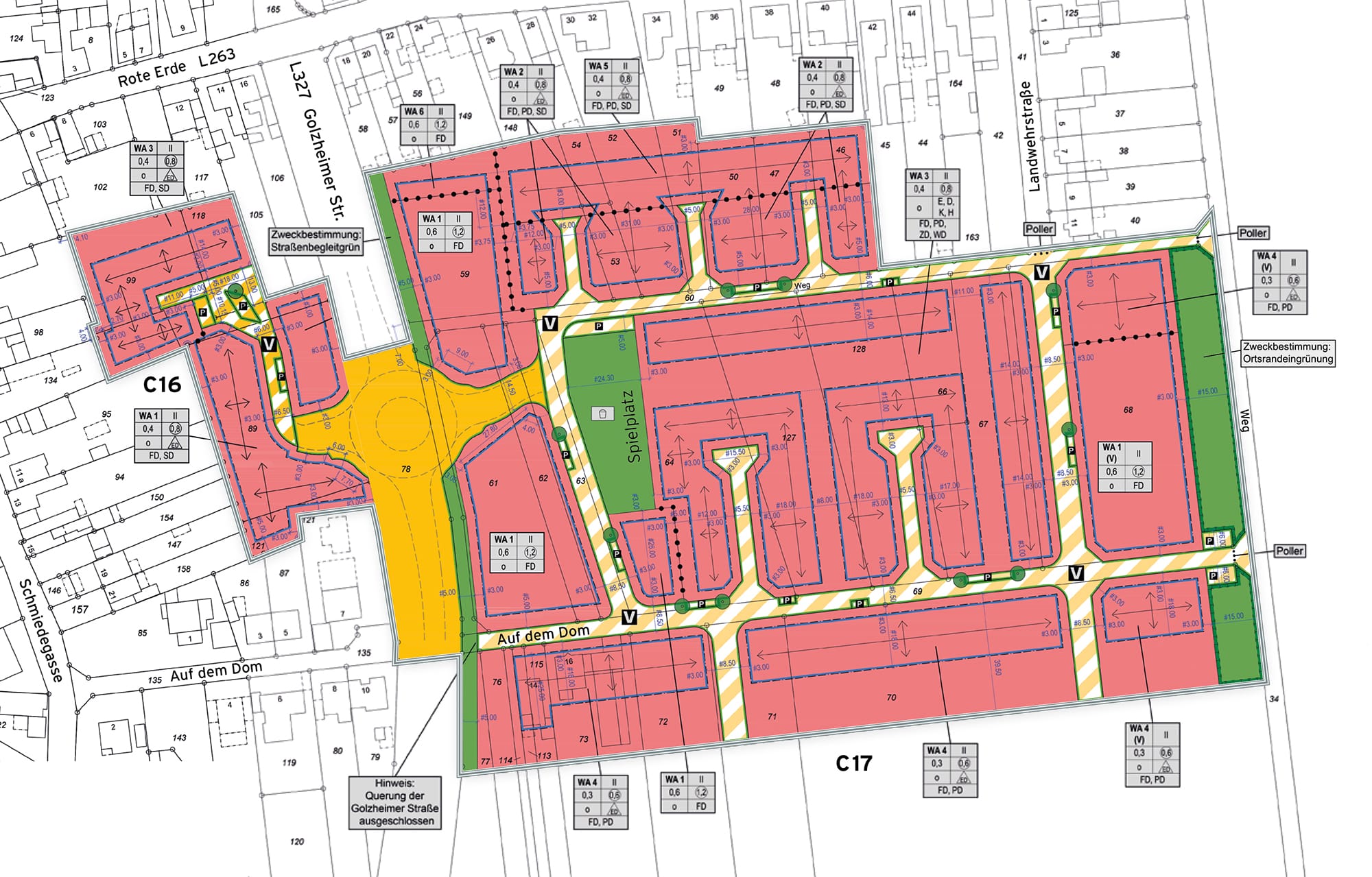
Im Bebauungsplan (C16 und C17) (B-Plan) legt die Gemeinde als Satzung fest, welche bauliche Nutzung auf einer Fläche zulässig ist. In der Regel besteht der Bebauungsplan aus einer Planzeichnung (Teil A) und einem Textteil (Teil B). Für die Hausplanung sind diese Vorgaben sowie eine eventuelle Gestaltungssatzung zu beachten.
Der B-Plan wird aus dem Flächennutzungsplan entwickelt, der für das gesamte Gemeindegebiet gültig ist. Im Baugesetzbuch sind unter anderem folgende städtebauliche Ziele definiert:
- eine nachhaltige Entwicklung
- soziale, wirtschaftliche und umweltschützende Anforderungen
- Verantwortung gegenüber künftigen Generationen
- dem Wohl der Allgemeinheit dienende sozialgerechte Bodenordnung
- menschenwürdige Umwelt
- Schutz und Entwicklung der natürlichen Lebensgrundlagen
- Klimaschutz
- städtebauliche Gestalt
- baukulturelle Erhaltung und Entwicklung des Orts- und Landschaftsbildes
- gesunde Wohn- und Arbeitsverhältnisse
- soziale und kulturelle Bedürfnisse
- Denkmalschutz
- Belange des Umweltschutzes (sehr umfangreich)
- Belange der Wirtschaft
- Belange des Verkehrs
Ein wichtiger Grundsatz laut Baugesetzbuch ist, im Rahmen der Planung die öffentlichen und privaten Belange gegeneinander und untereinander gerecht abzuwägen. Weitere Informationen zu diesem Thema finden Sie unter der Rubrik Über uns - Tätigkeitsbereiche.

